MACCAGNO CON PINO E VEDDASCA (VA) ZENNA – APPARTAMENTO – VENDITA – cod.6628
€80.000
Cremenaga, VA, Italia
Vendita
€410.000

























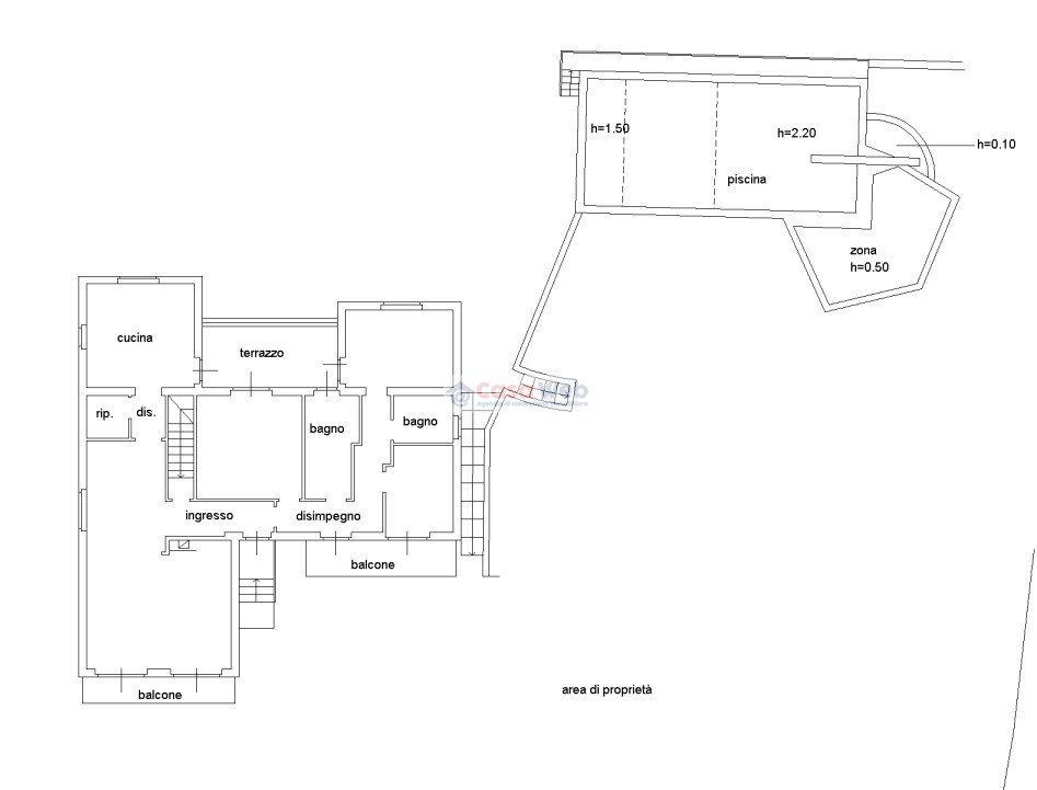
VILLA SINGOLA CON GIARDINO E PISCINA
Proponiamo villa singola circondata da un ampio giardino di circa 1.800 mq, completa di piscina.
L’abitazione si sviluppa come segue:
Piano rialzato: tre camere da letto, soggiorno, cucina, due bagni, dispensa e terrazzo.
Piano seminterrato: locale sgombero, locale caldaia, bagno, box auto e portico.
Possibilità di acquistare terreno edificabile ad € 220.000, 00.
Stato e finiture
La villa è stata edificata negli anni ’60 e completamente ristrutturata nel 1996. Attualmente l’immobile è abitabile, ma necessita di interventi di ammodernamento; la piscina è da ristrutturare.
Spazi esterni
Il punto di forza della proprietà è l’ampio giardino pianeggiante di circa 1.800 mq, ideale per vivere gli spazi all’aperto in totale privacy, con piscina.
Posizione
Situata a Cremenaga, la villa si trova a soli 2 minuti di auto dal valico di confine con la Svizzera e a breve distanza da Luino e da tutti i principali servizi: scuole, municipio, ufficio postale e attività commerciali.
Utilizzo e potenzialità
Soluzione ideale come abitazione principale, con interessanti margini di valorizzazione.
Non esitate a contattarci per qualsiasi informazione, per un incontro nel nostro ufficio o per visionare l’immobile.
I nostri uffici sono aperti:
dal martedì al sabato dalle ore 9.00-12.30 e dalle ore 14.00 alle ore 19.00, telefono.
Antonio D’Avino e lo Staff di Casa Web vi aspettano nella sede di Luino (VA) corso XXV Aprile 61 con parcheggio interno riservato ai clienti.
Owning a home is a keystone of wealth… both financial affluence and emotional security.
Suze Orman