MONTEGRINO VALTRAVAGLIA (VA) CASTENDALLO – UNIFAMILIARE CASA SINGOLA – VENDITA – cod.6517
€160.000
Castelveccana, VA, Italia
Vendita
€360.000























VILLA SINGOLA
In posizione tranquilla e soleggiata, proponiamo elegante VILLA SINGOLA disposta su due livelli, circondata da un curato giardino privato di circa 850 mq, ideale per chi desidera comfort e spazi verdi vivibili.
Al piano terra si sviluppa la zona principale dell’abitazione, composta da un accogliente soggiorno, una sala da pranzo luminosa, cucina abitabile, due bagni e due camere da letto, una matrimoniale e una doppia, pensate per offrire praticità e funzionalità nella quotidianità.
Il piano primo è dedicato a un secondo ambiente indipendente, perfetto come zona ospiti o mini appartamento, con camera da letto, soggiorno con angolo cottura e bagno.
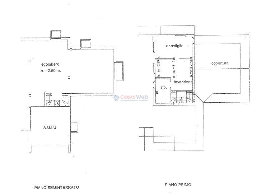
Al piano seminterrato trovano spazio un locale a rustico con ottime potenzialità di personalizzazione, la centrale termica e un comodo box auto.
STATO E FINITURE
L’immobile è stato costruito nei primi anni ’90 e nel corso degli anni è stato mantenuto con cura, preservandone l’integrità e il fascino originario.
Attualmente, il piano terra si presenta completamente abitabile e funzionale, con ambienti luminosi e ben distribuiti, pronti per essere vissuti senza necessità di interventi immediati.
Il piano seminterrato, invece, è allo stato grezzo e offre ampie possibilità di personalizzazione: può essere trasformato in una comoda taverna, in un’area hobby o in ulteriori spazi abitativi a seconda delle esigenze.
SPAZI ESTERNI
La proprietà è impreziosita da un ampio giardino privato di circa 850 mq, curato con attenzione e perfettamente esposto al sole per l’intera giornata.
Gli spazi verdi, pianeggianti e facilmente fruibili, offrono angoli ombreggiati e zone ideali per il relax all’aperto, per pranzi in famiglia o momenti conviviali con gli amici.
POSIZIONE GEOGRAFICA
L’immobile si trova a Castelveccana, in una zona residenziale tranquilla e soleggiata, a pochi minuti dal centro e dai principali servizi.
Il paese, affacciato sulle rive del Lago Maggiore, è conosciuto per le spiagge curate, i sentieri panoramici e la vicinanza ai rinomati borghi lacustri come Caldè, “la Portofino del Lago Maggiore”, con il suo romantico porticciolo, i ristoranti sul lungolago e le acque limpide ideali per la balneazione.
A breve distanza si raggiungono Luino, con il suo vivace mercato settimanale, i servizi principali, le scuole e i collegamenti ferroviari verso la Svizzera, e Laveno Mombello, punto d’imbarco per il traghetto diretto a Verbania e alle sponde piemontesi del lago.
La posizione strategica rende questa proprietà ideale sia come residenza principale sia come casa vacanze, grazie all’ottimo equilibrio tra tranquillità, sole e comodità.
UTILIZZO E POTENZIALITÀ
L’abitazione è adatta come residenza principale o come casa vacanza.
Non esitate a contattarci per qualsiasi informazione, per un incontro nel nostro ufficio o per visionare l’immobile.
I nostri uffici sono aperti dal martedì al sabato dalle ore 9.00-12.30 e dalle ore 14.00 alle ore 19.00, telefono +39 0332 169 94 70.
Antonio D’Avino e lo Staff di Casa Web vi aspettano nella sede di Luino (VA) corso XXV Aprile 61 con parcheggio interno riservato ai clienti.
Owning a home is a keystone of wealth… both financial affluence and emotional security.
Suze Orman