MACCAGNO CON PINO E VEDDASCA (VA) ZENNA – APPARTAMENTO – VENDITA – cod.6628
€80.000
RUNO, Dumenza, VA, Italia
Vendita
€300.000
































VILLA SINGOLA immersa in un ampio giardino di circa 1.500 mq, una soluzione di grande metratura e straordinaria versatilità, ideale sia come abitazione principale sia come investimento.
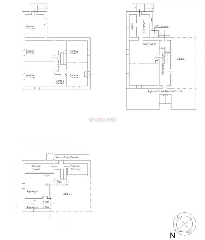
La proprietà si sviluppa su più livelli e offre complessivamente sette camere da letto, cinque soggiorni, cinque cucine o angoli cottura e sette bagni, garantendo spazi ben distribuiti e adatti anche a più nuclei familiari.
Gli ambienti risultano luminosi e funzionali, con la presenza di un balcone e ulteriori locali accessori, tra cui due spazi accatastati come ripostiglio, di cui uno attualmente utilizzato come camera.
Completa la proprietà un ampio piano interrato composto da 6 locali cantina, ideali come deposito o spazi di servizio.
Un appartamento è attualmente locato.
Una proposta unica nel suo genere, immersa nel verde e caratterizzata da ampie possibilità di personalizzazione e utilizzo.
STATO E FINITURE
L’immobile si presenta in parte già abitabile e in parte da ristrutturare, offrendo interessanti opportunità di personalizzazione e valorizzazione in base alle proprie esigenze.
Nel complesso, la proprietà rappresenta una soluzione ideale per chi desidera un’abitazione di ampia metratura da adattare e rendere unica, con la possibilità di intervenire gradualmente sugli spazi.
SPAZI ESTERNI
La casa gode di circa 1.500 mq di giardino, uno spazio verde ampio e versatile che offre numerose possibilità di utilizzo.
Ideale per chi ama vivere all’aria aperta, il giardino si presta perfettamente alla realizzazione di zone relax, aree pranzo e spazi dedicati al tempo libero, come una zona barbecue o un’area giochi per bambini.
La metratura consente inoltre la creazione di un orto o di un giardino ornamentale, valorizzando ulteriormente la proprietà.
A completare gli spazi esterni, la presenza di balconi e terrazzi permette di godere di ulteriori sfoghi all’aperto, ideali per momenti di relax e convivialità, offrendo una piacevole continuità tra interno ed esterno.
POSIZIONE GEOGRAFICA
L’abitazione è ubicata nella frazione di Runo, nel comune di Dumenza, in un contesto tranquillo e immerso nel verde, ideale per chi è alla ricerca di relax e contatto con la natura.
La zona è particolarmente apprezzata dagli amanti delle passeggiate all’aria aperta, grazie ai numerosi percorsi di trekking e sentieri panoramici che si snodano nei dintorni. A
breve distanza si trova anche il comune di Agra, rinomato per i suoi percorsi naturalistici e i suggestivi punti panoramici.
Inoltre, la vicinanza a Luino permette di raggiungere comodamente tutti i principali servizi e di vivere l’atmosfera del celebre mercato settimanale del mercoledì, uno dei più conosciuti della zona.
UTILIZZO E POTENZIALITÀ
L'immobile è adatto come casa vacanza.
Per maggiori informazioni, non esitate a contattarci. Saremo felici di organizzare un incontro presso i nostri uffici o di mostrarvi l'immobile di persona.
I nostri uffici sono aperti dal martedì al sabato, dalle 9:00 alle 12:30 e dalle 14:00 alle 19:00.
Potete raggiungerci al numero +39 0332 169 94 70.
Antonio D’Avino e lo Staff di Casa Web vi attendono presso la nostra sede a Luino (VA), in Corso XXV Aprile 61, dove troverete anche un parcheggio riservato ai nostri clienti.
Owning a home is a keystone of wealth… both financial affluence and emotional security.
Suze Orman