MACCAGNO CON PINO E VEDDASCA (VA) ZENNA – APPARTAMENTO – VENDITA – cod.6628
€80.000
ROCCOLO, Porto Valtravaglia, VA, Italia
Vendita
€490.000



















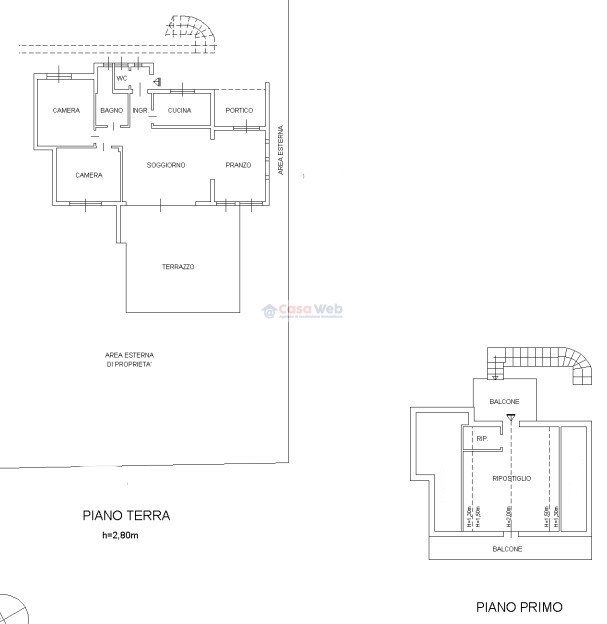
VILLA SINGOLA con splendida vista lago in posizione panoramica e riservata, disposta su due livelli, caratterizzata da una suggestiva vista sul lago e da spazi esterni piacevoli e ben fruibili.
Al piano terra l’abitazione si compone di camera matrimoniale, cameretta, luminoso soggiorno con camino, cucina, sala da pranzo e bagno.
All’esterno sono presenti un portico coperto, un terrazzo con incantevole vista lago e un comodo wc esterno, ideali per vivere appieno gli spazi all’aperto durante la bella stagione.
Il primo piano, raggiungibile tramite scala esterna, ospita due locali, di cui uno utilizzato come camera e uno come bagno, oltre a due balconi, uno dei quali con piacevole vista lago.
La proprietà è completata da circa 360 mq di giardino privato con doccia esterna, che garantisce tranquillità e spazio verde intorno all’abitazione, e da un ampio box auto al piano seminterrato.
STATO E FINITURE
L’immobile è stato realizzato negli anni Settanta e nel tempo è stato oggetto di alcuni interventi di manutenzione e miglioramento.
In particolare, negli anni novanta sono stati sostituiti gli infissi esterni, mentre successivamente nel 2010 è stato eseguito il rifacimento completo del tetto, con contestuale sopraelevazione del sottotetto, intervento che ha contribuito a valorizzare ulteriormente la struttura dell’abitazione.
Grazie a questi lavori e alla cura nel tempo, la proprietà si presenta attualmente in ottime condizioni generali, risultando abitabile e ben mantenuta
SPAZI ESTERNI
La villa dispone di un ampio terrazzo panoramico, dal quale si può ammirare una splendida vista sul lago, ideale per momenti di relax e convivialità all’aperto.
La proprietà è inoltre circondata da circa 360 mq di giardino privato, ben curato e mantenuto, che garantisce uno spazio verde piacevole e riservato, perfetto per vivere l’esterno in ogni stagione.
POSIZIONE GEOGRAFICA
L’abitazione è situata in zona residenziale nel comune di Porto Valtravaglia, in posizione panoramica e ben esposta al sole, con splendida vista sul lago.
La collocazione garantisce tranquillità e riservatezza, pur rimanendo comoda ai principali servizi del paese, facilmente raggiungibili in pochi minuti di auto, tra cui negozi, stazione ferroviaria, lungolago e attività di prima necessità.
UTILIZZO E POTENZIALITÀ
La villa si presta particolarmente bene come seconda casa, ideale per famiglie che desiderano trascorrere piacevoli periodi di vacanza in un contesto tranquillo e panoramico, immersi nella bellezza del lago e della natura circostante.
Grazie agli spazi interni ben distribuiti, al giardino privato e al terrazzo con splendida vista lago, la proprietà rappresenta una soluzione perfetta per vivere momenti di relax e convivialità, godendo appieno dell’atmosfera e del paesaggio del territorio.
Per maggiori informazioni, non esitate a contattarci. Saremo felici di organizzare un incontro presso i nostri uffici o di mostrarvi l'immobile di persona.
I nostri uffici sono aperti dal martedì al sabato, dalle 9:00 alle 12:30 e dalle 14:00 alle 19:00.
Potete raggiungerci al numero +39 0332 169 94 70.
Antonio D’Avino e lo Staff di Casa Web vi attendono presso la nostra sede a Luino (VA), in Corso XXV Aprile 61, dove troverete anche un parcheggio riservato ai nostri clienti.
Owning a home is a keystone of wealth… both financial affluence and emotional security.
Suze Orman